詳細情報
売買
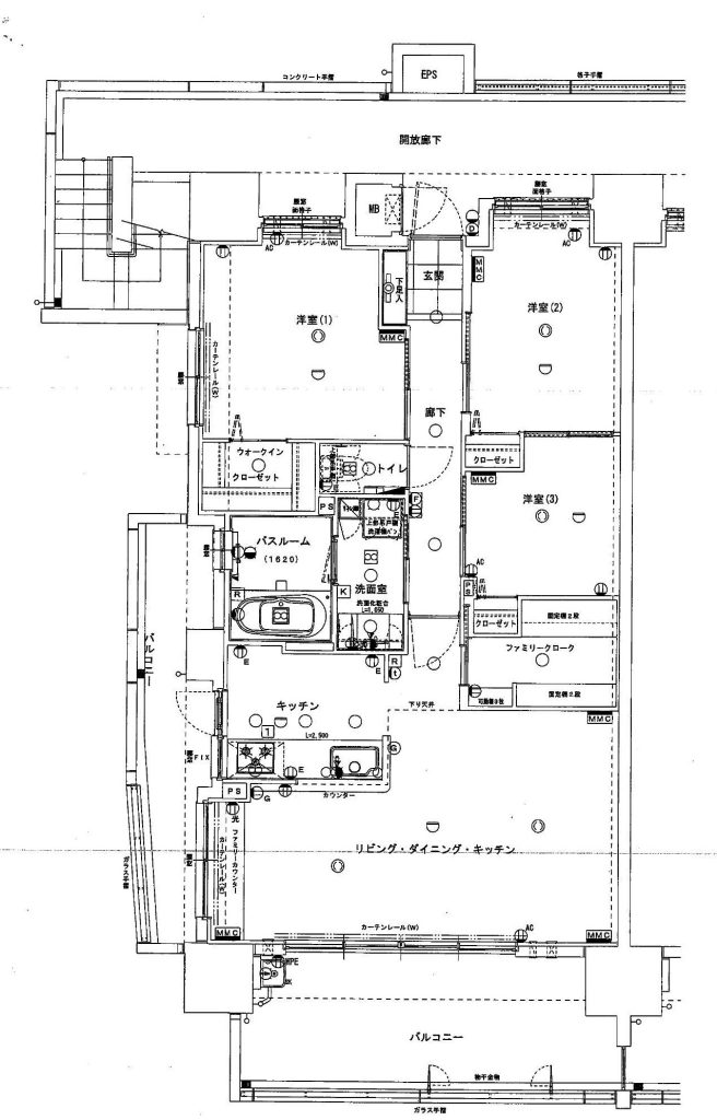
ヴェルディ沖野上パークテラスⅡ
| 管理番号 | 82 | ||
|---|---|---|---|
| 所在地 | 福山市多治米町6-1-28 | ||
| 交通 | |||
| 間取り(部屋数) | 3 | 間取り(タイプ) | LDK |
| 物件タイプ | 売マンション | 築年月 | 2025年7月 |
| 構造 | 鉄筋コンクリート造 | 階数 | 15階建ての15階部分 |
| 価格 | 5,500万円 | ||
| 土地面積 | 3,938㎡ (約1,191.10坪) | ||
| 建物面積 | 75㎡ (約22.61坪) | ||
| 都市計画 | 市街化区域 | ||
| 用途地域 | 第二種住居地域 | ||
| 建ぺい率 | 70% | ||
| 容積率 | |||
| 地目 | |||
| 現況 | |||
| 引渡し時期 | 即日 | ||
| 駐車場 | 2 | ||
| 接道状況 | |||
| 接道方向 | |||
| 接道種類 | |||
| 接道幅員 | |||
| 設備・条件 | 電気、都市ガス、上下水道、エレベーター、オートロック、システムキッチン、IHクッキングヒーター | ||
| 備考 | ■管理費13,100円/月 ■修繕積立費3,310円/月 ■駐車場9,000円/月(縦列2台) ■2025年7月新築の未入居、最上階の角部屋 |
||
| 取引形態 | 専任 | ||
| 更新日 | 20251205 | ||
| 写真等 |
![]() |
||
| 間取り |
|
||


